中古一戸建て 鳥取市河原町釜口
所在地
      鳥取市河原町釜口
    
                  400万円
              
      
                                            68.12坪
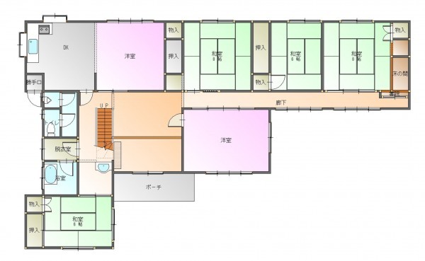
                                      9DK
                                    
    月々の
支払例
      支払例
万円
          年
          %
          円
        ※山陰合同銀行/借入金400万円、返済期間40年、金利0.800%変動金利)の場合
※審査により金利は変わる可能性があります。
物件概要
- 交通
- 
  バス停釜口 まで 徒歩6分 
- 接道状況
- 
  南東側 公道7m 間口約48m
 北西側 公道7m 間口約62m
- 土地面積
- 公簿 984.20㎡ (297.72坪)
- 建物面積
- 225.21㎡ (68.12坪)
- 築年数
- 
  1982年
                          (昭和57)
                          6月
                
                  
 築43年
- 建ぺい率
- 70%
- 容積率
- 400%
- 土地権利
- 所有権
- 構造および階数
- 木造 地上2階建
- 小学校区
- 河原第一
- 中学校区
- 河原
- 私道負担
- 無
- 地目
- 宅地
- 現況
- 空
- 引渡時期
- 相談
- 駐車場
- 有
- 上水道
- 公共
- 下水道
- 公共
- ガス
- プロパン個別
- 都市計画
- 非線引区域
- 用途地域
- 設備・条件
- 備考
- 取引態様
- 仲介
 
 
             
             
             
           
           
          

 
                   
               
                   
                 
                   
                  



